Пользуясь нашим сайтом, вы соглашаетесь
с тем, что мы используем cookies.

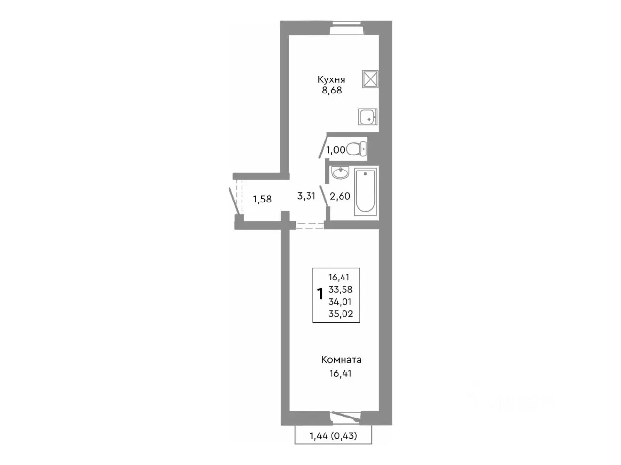
1-комнатная квартира , 34 м²

Планировка

Характеристики квартиры

Количество комнат 1
Общая площадь 34 м²
Жилая площадь 16.4 м²
Площадь кухни 8.7 м²
Этаж / Этажность 8 из 10
Корпус Дом 10655659
Срок сдачи Сдача в 4-кв. 2026

Описание

Продаётся 1-комнатная квартира в строящемся доме (Дом 1.7), срок сдачи: IV-кв. 2026, общей площадью 34.01 кв.м., на 8 этаже. Новый жилой комплекс "НИКС Лайн на Ярославской" от группы компаний "НИКС" расположен по адресу: г. Челябинск, по ул. Ярославская.
5 407 590 ₽
159 000 ₽ за м²