Пользуясь нашим сайтом, вы соглашаетесь
с тем, что мы используем cookies.

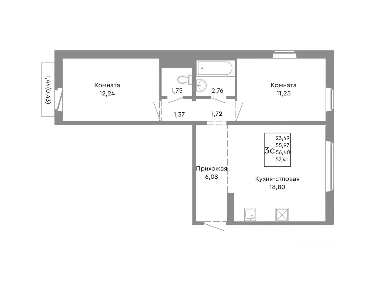
3-комнатная квартира , 56.4 м²

Планировка

Характеристики квартиры

Количество комнат 3
Общая площадь 56.4 м²
Жилая площадь 23.5 м²
Этаж / Этажность 4 из 10
Корпус Дом 10915735
Срок сдачи Сдача в 1-кв. 2027

Описание

Продаётся 3-комнатная квартира в строящемся доме (Дом 1.8а), срок сдачи: I-кв. 2027, общей площадью 56.4 кв.м., на 4 этаже. Новый жилой комплекс "НИКС Лайн на Ярославской" от группы компаний "НИКС" расположен по адресу: г. Челябинск, по ул. Ярославская.
7 726 800 ₽
137 000 ₽ за м²