Пользуясь нашим сайтом, вы соглашаетесь
с тем, что мы используем cookies.

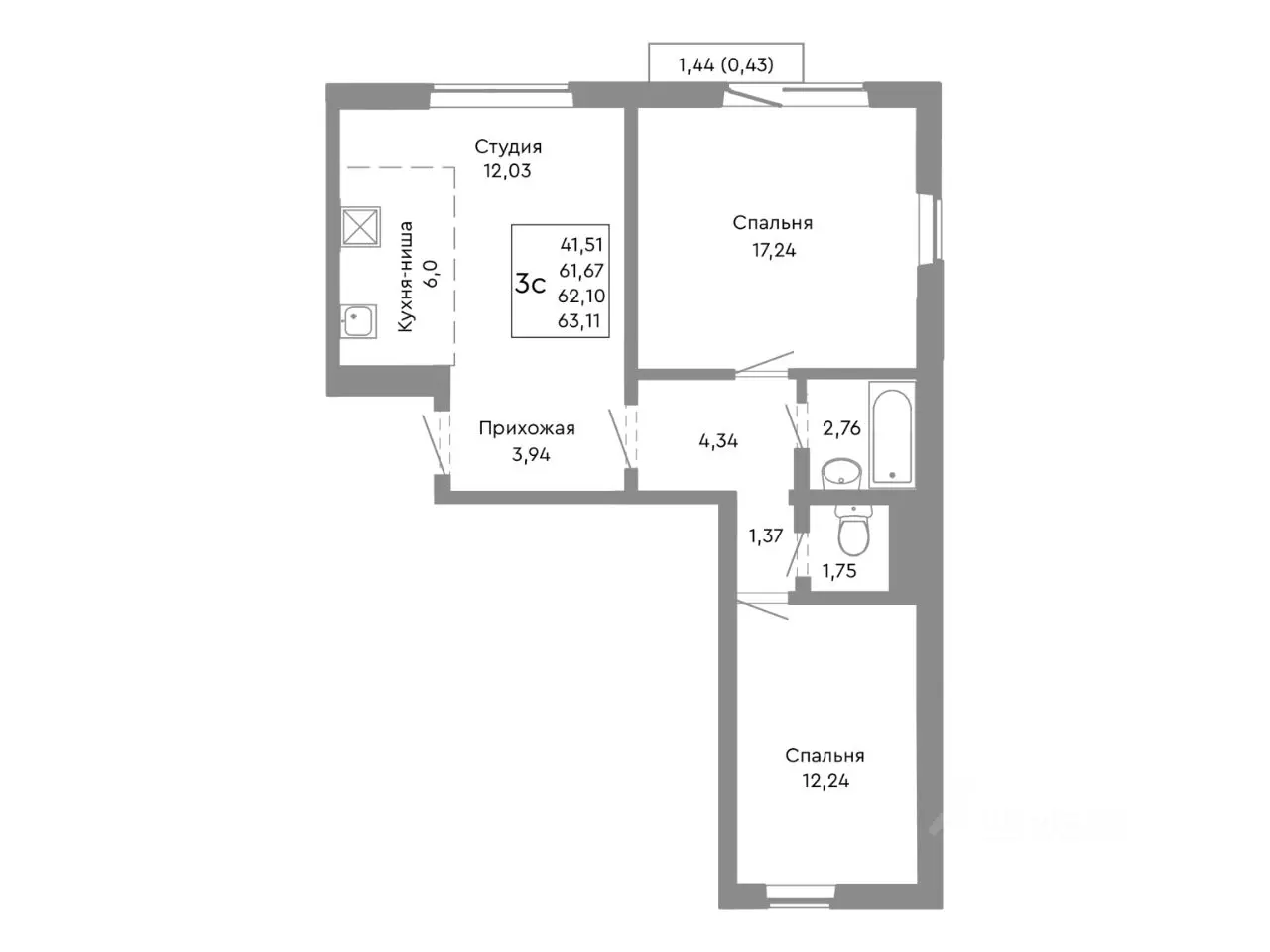
3-комнатная квартира , 62.1 м²

Планировка

Характеристики квартиры

Количество комнат 3
Общая площадь 62.1 м²
Жилая площадь 39.1 м²
Площадь кухни 18 м²
Этаж / Этажность 5 из 10
Корпус Дом 10655658
Срок сдачи Сдача в 4-кв. 2026

Описание

Продаётся 3-комнатная квартира в строящемся доме (Дом 1.9), срок сдачи: IV-кв. 2026, общей площадью 62.1 кв.м., на 5 этаже. Новый жилой комплекс "НИКС Лайн на Ярославской" от группы компаний "НИКС" расположен по адресу: г. Челябинск, по ул. Ярославская.
8 259 300 ₽
133 000 ₽ за м²