Просторная 3-комнатная квартира от Застройщика, общей площадью 71,8 кв.м., в новом жилом комплексе "Дом на Спартаке".
Квартира с отличным видом на центр города Челябинск!
- Модный и современный комплекс расположен максимально близко к центру.
- В шаговой доступности находится ТРК"Горки", зеленые парки и скверы, до Кировки можно дойти прогулочным шагом за полчаса.
- Детские сады и школы, детский развлекательный центр, магазины, театры, кафе, рестораны, салоны красоты все рядом.
В стильном 21-этажном доме в каждом подъезде 3 современных лифта. Закрытая территория с бесконтактной системой доступа во двор и подъезд обеспечит жителям приватность и безопасность. Во дворе детская площадка с безопасным прорезиненным покрытием и спортивная площадка для занятий спортом всей семьей. Все это окружено ландшафтным озеленением по проекту архитектурного бюро. Места общего пользования и холлы с дизайнерской отделкой.
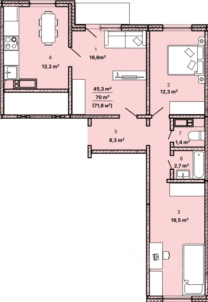
Функциональная планировка: кухня 12,2 кв.м., гостиная 16,6 кв.м.,2 спальни (12,3 и 16,5 кв.м.), раздельный сан.узел, остекленная лоджия. Квартира передается с предчистовой отделкой White box.
Срок сдачи дома 3 квартал 2026 года.
Действует система скидок от Застройщика при единовременном расчете.
Рассрочка на период строительства от Застройщика.
Действуют все льготные ипотечные программы. По "Семейной ипотеке" и "Ипотеке для IT" ставка составит 6% годовых (ПСК от 7,301 до 16%) при первоначальном взносе от 20,1%.
Звоните, подробно расскажем все условия покупки!