Пользуясь нашим сайтом, вы соглашаетесь
с тем, что мы используем cookies.

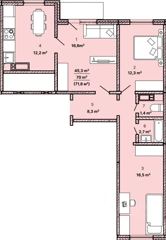
3-комнатная квартира , 71.8 м²

Планировка

Характеристики квартиры

Количество комнат 3
Общая площадь 71.8 м²
Этаж / Этажность 9 из 21
Корпус Дом 9698938
Срок сдачи Сдача в 3-кв. 2026

Описание

Просторная 3-комнатная квартира от Застройщика, общей площадью 71,8 кв.м., в новом жилом комплексе "Дом на Спартаке". Квартира с отличным видом на центр города Челябинск! - Модный и современный комплекс расположен максимально близко к центру. - В шаговой доступности находится ТРК"Горки", зеленые парки и скверы, до Кировки можно дойти прогулочным шагом за полчаса. - Детские сады и школы, детский развлекательный центр, магазины, театры, кафе, рестораны, салоны красоты все рядом. В стильном 21-этажном доме в каждом подъезде 3 современных лифта. Закрытая территория с бесконтактной системой доступа во двор и подъезд обеспечит жителям приватность и безопасность. Во дворе детская площадка с безопасным прорезиненным покрытием и спортивная площадка для занятий спортом всей семьей. Все это окружено ландшафтным озеленением по проекту архитектурного бюро. Места общего пользования и холлы с дизайнерской отделкой. Функциональная планировка: кухня 12,2 кв.м., гостиная 16,6 кв.м.,2 спальни (12,3 и 16,5 кв.м.), раздельный сан.узел, остекленная лоджия. Квартира передается с предчистовой отделкой White box. Срок сдачи дома 3 квартал 2026 года. Действует система скидок от Застройщика при единовременном расчете. Рассрочка на период строительства от Застройщика. Действуют все льготные ипотечные программы. По "Семейной ипотеке" и "Ипотеке для IT" ставка составит 6% годовых (ПСК от 7,301 до 16%) при первоначальном взносе от 20,1%. Звоните, подробно расскажем все условия покупки!
10 583 320 ₽
147 400 ₽ за м²