Пользуясь нашим сайтом, вы соглашаетесь
с тем, что мы используем cookies.

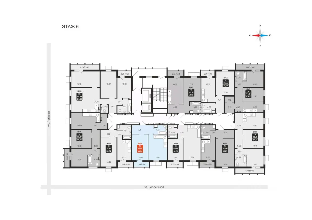
1-комнатная квартира , 44.3 м²

Планировка

Характеристики квартиры

Количество комнат 1
Общая площадь 44.3 м²
Площадь кухни 17 м²
Этаж / Этажность 6 из 18
Корпус Дом 10913501
Срок сдачи Сдача в 3-кв. 2027

Описание

Жилой комплекс "Заручейный" - это новый дом комфорт-класса от "Бетотек Застройщик" на ул. Лобкова 33. (стр.) Он удачно расположен на пересечении ул. Российской и Лобкова, в 5 минутах от культурно-делового центра Челябинска. Это 18-ти этажный дом комфорт-класса с коммерческими помещениями на 1-ом этаже. Преимущества квартир в ЖК "Заручейный": - горизонтальная разводка отопления - современные радиаторы отопления - поквартирный учет тепла - качественные окна от надежного производителя - качественные входные двери - стяжка - разводка электрики - продуманное расположение розеток и выключателей - высота потолков на 2-18 этажах - 2,61 м от стяжки до бетонного потолка Заезжая в квартиру вам остается приступить только к финишной отделке! Здесь жителей ждут уютный и безопасный двор, дизайнерская отделка подъездов, 2 лифта, разнообразие индивидуальных планировок. Остались вопросы? Свяжитесь с нами и узнайте больше о жилом комплексе "Заручейный".
6 429 300 ₽
145 000 ₽ за м²