Пользуясь нашим сайтом, вы соглашаетесь
с тем, что мы используем cookies.

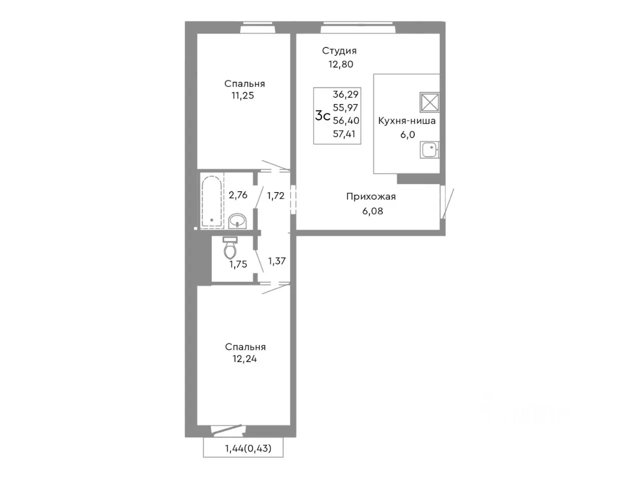
3-комнатная квартира , 56.4 м²

Планировка

Характеристики квартиры

Количество комнат 3
Общая площадь 56.4 м²
Жилая площадь 36.3 м²
Этаж / Этажность 6 из 10
Корпус Дом 10911614
Срок сдачи Сдача во 2-кв. 2027

Описание

Продаётся 3-комнатная квартира в строящемся доме (Дом 1), срок сдачи: II-кв. 2027, общей площадью 56.4 кв.м., на 6 этаже. Современная жизнь - это умение выбирать только то, что действительно важно. НИКС Лайн на Танкистов - не просто дом, а рациональный выбор для тех, кто ценит пространство без переплат, время без ремонта и спокойствие без шума.
7 839 600 ₽
139 000 ₽ за м²